Ampio trilocale in condominio con giardino
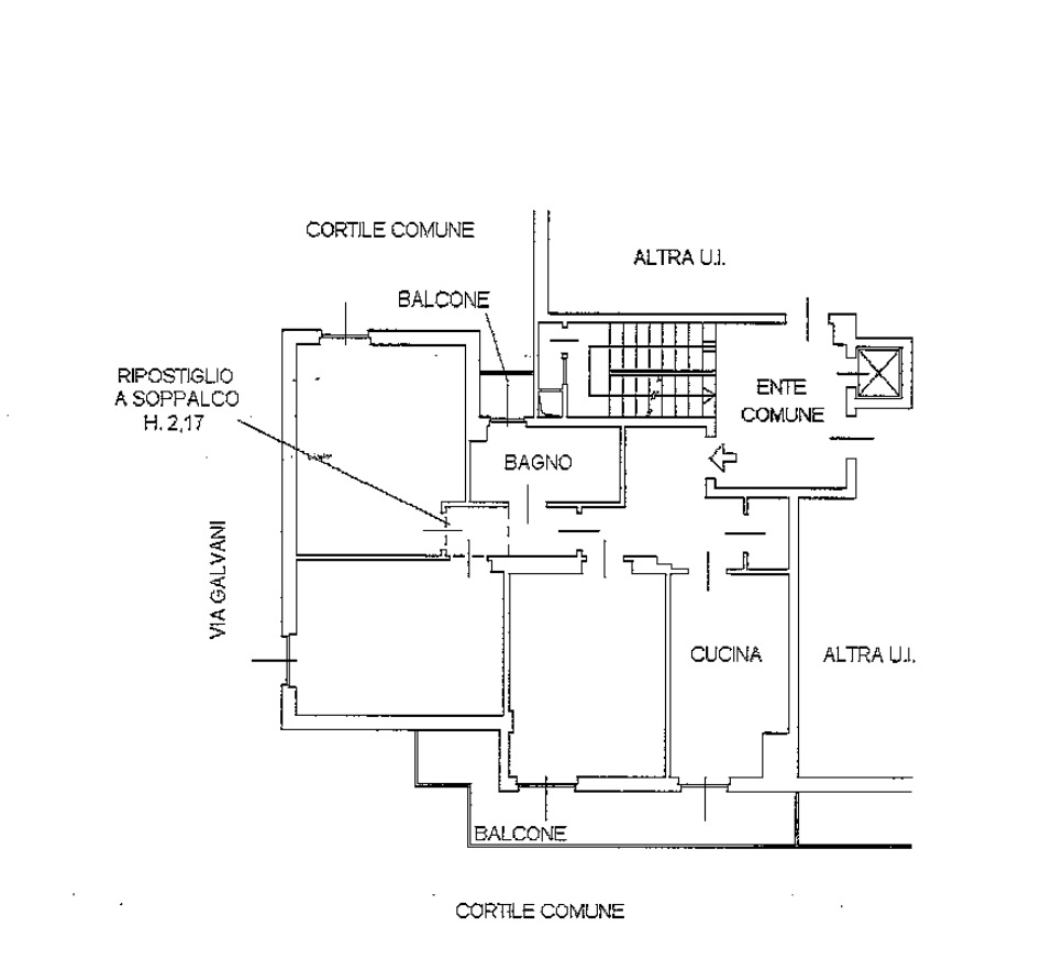
In posizione silenziosa e riservata, all'interno di un bel condominio con giardino comune e portineria, vendiamo trilocale ristrutturato nel 2023 completo di cucina su misura, con cantina e ascensore. L'appartamento è composto da un grande soggiorno con doppio balcone, due camere matrimoniali, bagno con finestra e balconcino, cucina abitabile con affaccio sul balcone. Tripla esposizione, aria condizionata e doppi vetri.
Il condominio è in fase di completa ristrutturazione con Bonus 110% e i lavori saranno completati a primavera 2026. La classe energetica attesa è la D. Non sono previste altre spese straordinarie. il giardino condominiale e la portineria sono gestite dal maxi condominio. Le spese sono di circa 200 euro/mese.
Il condominio è in fase di completa ristrutturazione con Bonus 110% e i lavori saranno completati a primavera 2026. La classe energetica attesa è la D. Non sono previste altre spese straordinarie. il giardino condominiale e la portineria sono gestite dal maxi condominio. Le spese sono di circa 200 euro/mese.
Ampio 3 locali
- Superficie di 93m2 commerciali
- Secondo piano con ascensore
- 2 camere
- 1 bagno
- 2 balconi
Posizione: Cologno Monzese - Garden City
Prezzo : EUR 289.000


